Sorterargatan 26, Vällingby
Lediga ytor för kontor och lager
- Skutkrossen 17
- 2751-1003
- Kontor
- Tillträde enligt överenskommelse
- Energiklass D. 120 kWh/m² år
- 3000 kvm
Lediga ytor för kontor och lager
Välkommen att hyra en anpassningsbar lokal i det expansiva företagsområdet Vinsta, Vällingby.
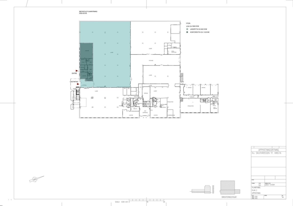
Lokalen är belägen på markplan och passar utmärkt för lager, verkstad, lätt industri och kontorsverksamhet. Lokalen är indelad i flera separata enheter, vilket gör det möjligt att hyra ytor från 500 kvm eller hela lokalen på cirka 3000 kvm. Det finns ett flertal entréer in till lokalen likväl som att lastintag/varumottagning möjliggörs från två sidor. Takhöjden varierar mellan 3-3,2 meter i lagerytorna.
Området erbjuder smidiga förbindelser både för biltrafik och via kollektivtrafik, med bland annat tunnelbanans gröna linje några minuters promenad bort. Vi erbjuder också generöst med parkeringsplatser för uthyrning direkt utanför lokalen.
Kontakta oss gärna för mer information och visning.
Låter det intressant?
Vänligen hör av dig till oss vid frågor.
Kontaktperson för frågor

Skutkrossen 17
Fastigheten ligger i Vinsta industriområde, ett expansivt framtidsområde beläget strax öster om Hässelby Gård i nordvästra Stockholm. Den har en trevlig skolgård med ett skogsparti och solceller på taket.
Det här finns i området
Omgivning
Vinsta ligger i västerort utanför centrala Stockholm. I Vinsta företagsområde huserar en stor mängd företag inom framförallt lager och logistik. Området genomgår en betydande utveckling med pågående projekt för bostäder och arbetsplatser. Planeringen inkluderar även en central knutpunkt för kollektivtrafik med en ny bussterminal. Den kommande färdigställandet av Förbifart Stockholm, med trafikplats Vinsta, förväntas ytterligare förbättra områdets tillgänglighet.
Kommunikation
Bussförbindelser och tunnelbana inom 5-10 minuters promenadavstånd.
Service
Här finns närhet till olika restauranger och livsmedelsaffärer. Dessutom erbjuder det intilliggande Vällingby Centrum en omfattande utbud av service.
Parkering
Möjlighet att hyra parkering i anslutning till lokalen.