Storgatan 82 A, Växjö
Ledig lokal i vackra ICON!
- Värendsvallen 18
- 2721-1005
- Kontor
- Tillträde enligt överenskommelse
- Hiss finns
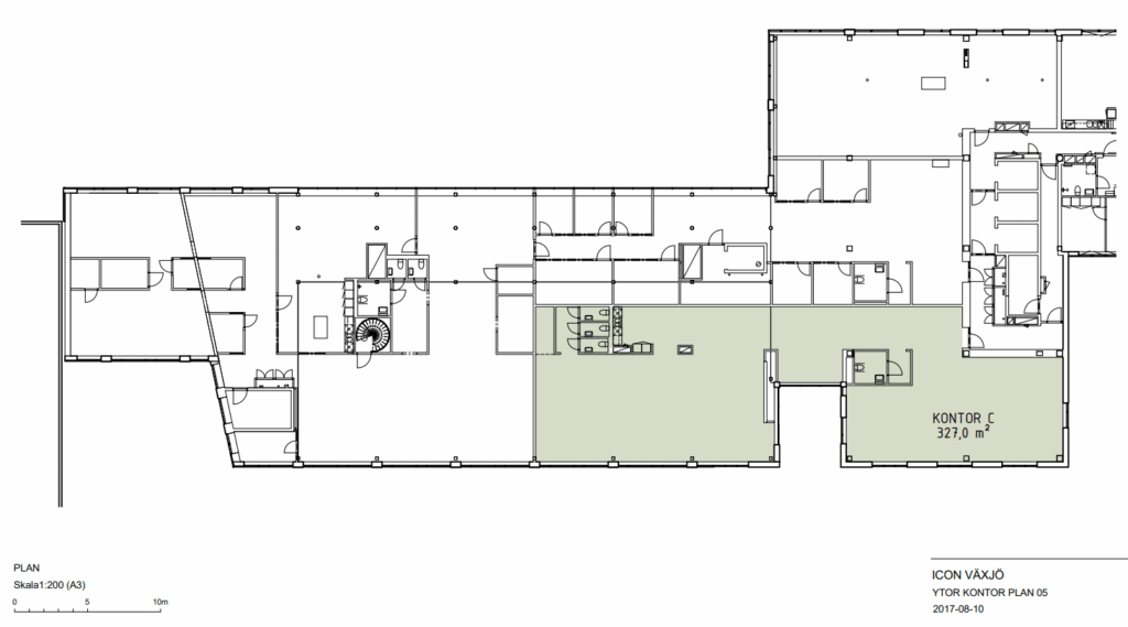
- Våningsplan: 5
- Totalt antal våningar: 5
- Energiklass C. 85 kWh/m² år
- Byggår 2018
- 327 kvm
Modern och fin lokal mitt i Arenastaden!
Hyr en stor och fin lokal i spektakulära ICON-huset! Lokalen är belägen på våning 5 med stora fönster som ger en fin utsikt över Arenastaden. Denna moderna lokal består av öppet kontorslandskap, konferensrum, kontor, kök, telefonbås och en fin lounge. Dessutom behöver du inte ens lämna fastigheten för att finna restaurang, café, frisör, gym och spa!
En del av fastigheten består också av 280 stycken bostadslägenheter vilket gör att det tillsammans med idrottsevenemangen även är liv och rörelse i området om kvällarna.
Ni som hyresgäst kan också boka konferensrum till rabatterat pris via BYN som finns i markplan.
Kontakta oss gärna om du vill veta mer eller ha en visning av denna fina lokal.
Låter det intressant?
Vänligen hör av dig till oss vid frågor.
Kontaktperson för frågor

Värendsvallen 18
Fastigheten kallas idag ICON Växjö. Det är en nybyggd 3D-byggnad med en helt unik arkitektur. Med sina 19 våningar har det blivit Växjös nya landmärke och Arenastadens blickfång.
Det här finns i området
Omgivning
ICON Växjö är en nybyggd 3D- fastighet som har blivit Växjös nya landmärke. Med sina 19 våningar och unika arkitektur har fastigheten blivit Arenastadens blickfång. Här kombineras både skola, kontor och boende samtidigt som närheten till både handel och idrottsanläggningar finns.Fastigheten ligger i Arenastaden i Växjö som är helt unik i sitt slag och ett av de bästa idrottsområdena i Sverige. Här samsas 15 olika sporter i flertalet arenor i anslutning till varandra.
Kommunikation
Bra bussförbindelser med ca 10 min in till centrum.
Service
I fastigheten finns restaurang, café, spa, gym och frisör.
Parkering
Parkering finns runtom fastigheten.