Artillerigatan 11, Visby
Centralt belägen kontorslokal
- Visby Mullvaden 41
- 7151-1122
- Kontor
- Tillträde enligt överenskommelse
- Hiss finns
- Våningsplan: 4
- Totalt antal våningar: 4
- Energiklass D. 97 kWh/m² år
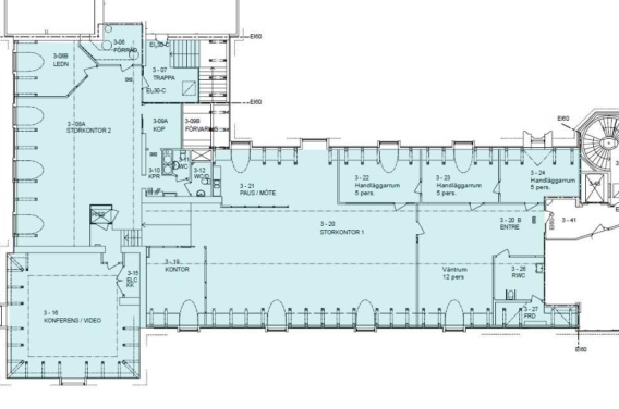
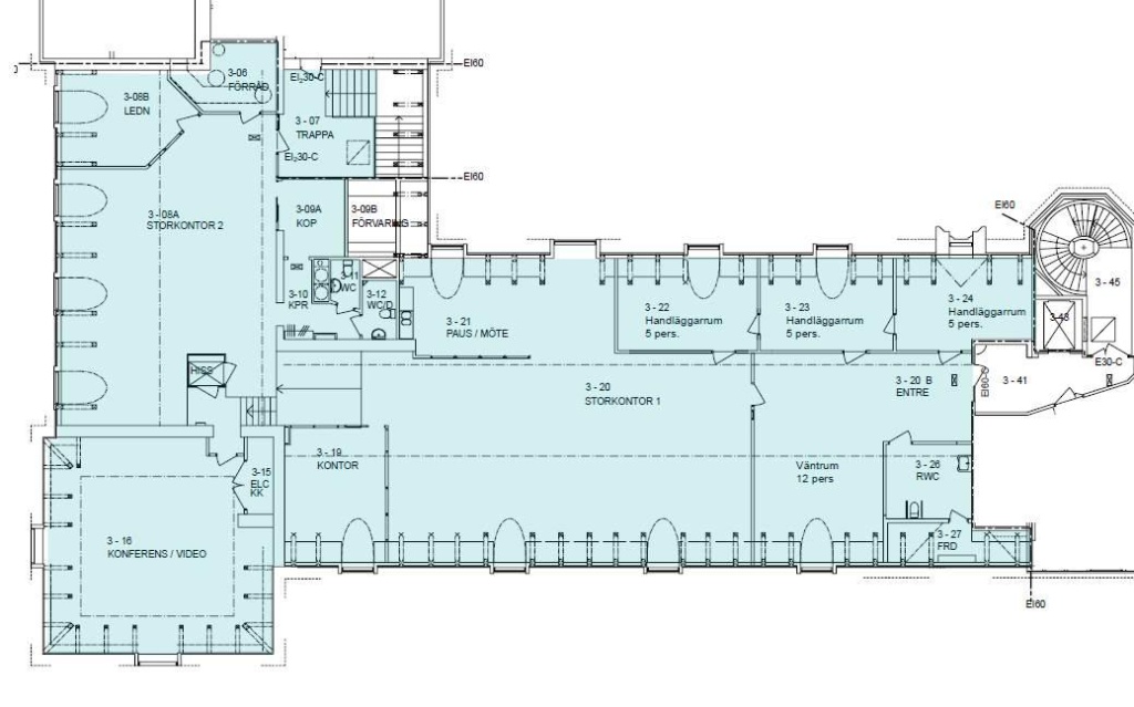
- 933 kvm
Centralt belägen kontorslokal
Välkommen till en ljus och rymlig kontorslokal med ett utmärkt läge!
Bara några minuters promenad från ringmuren finns nu möjlighet att hyra en inflyttningsklar kontorslokal.
Lokalen är fördelad på två våningsplan om 360 kvm och 573 kvm, sammanbundna med en intern hiss och trappa. Det går även att dela upp lokalen och endast hyra 573 kvm.
Lokalen erbjuder öppna planlösningar, rymliga konferensrum och ett välutrustat pentry. Med högt i tak, moderna ytskikt och stora spröjsade fönster har kontorslandskapen en ljus och trivsam karaktär.
Kontakta oss gärna för mer information eller för att boka en visning.
Låter det intressant?
Vänligen hör av dig till oss vid frågor.
Kontaktperson för frågor

Visby Mullvaden 41
Fastigheten som består av flera byggnader i olika stil ligger i det historiska militärområdet A7 strax utanför Visby. Här finns en stor variation av hyresgäster, vilket ger området en livfull och trevlig atmosfär.
Det här finns i området
Omgivning
Fastigheten byggdes år 1903 och består av 6 olika byggnader och ligger belägen i gamla A7-området.Denna historiska byggnad med sitt karaktäristiska utseende är ett landmärke i Visby. Omgiven av många andra vackra byggnader gör att det är ett område där man känner historiens vingslag.
Kommunikation
Bussförbindelser finns enbart 5 minuter bort. Cirka 15 minuters promenad till centrala Visby.
Service
Fastigheten ligger med promenadavstånd till Österport som tar dig innanför ringmuren och till Östercentrum. Där finner du all tänkbar service så som restauranger, butiker, bank och hotell.I en av byggnaderna som tillhör fastigheten finner du restaurangen Bryggeriet Mat & Malt.
Parkering
Gott om parkeringsplatser runt fastigheten.