Österväg 21, Visby
Kontorslokal med terrass vid Österport
- Visby Tjädern 7
- 7321-1103
- Kontor
- Tillträde enligt överenskommelse
- Våningsplan: 2
- Totalt antal våningar: 3
- Energiklass D. 106 kWh/m² år
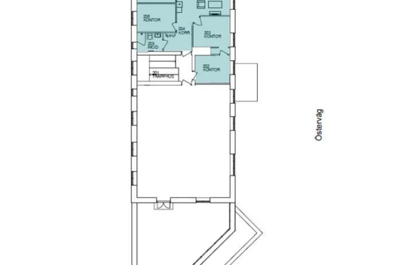
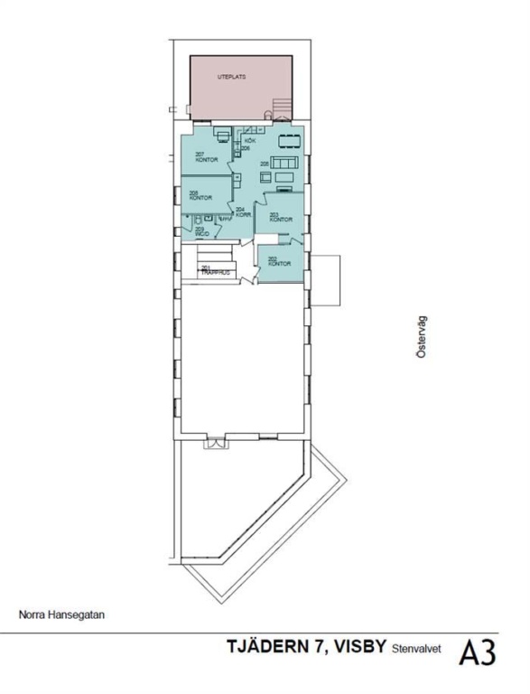
- 107 kvm
Kontorslokal med terrass vid Österport
Denna trevliga lokal om 107 kvm erbjuder fyra separata kontorsrum, perfekt för både individuellt arbete och mindre team. Här finns även ett fullutrustat kök samt ett pausrum där ni kan koppla av och umgås under arbetsdagen. Lokalen har såklart även en fräsch WC och dusch. Dessutom ingår en terrass om cirka 40 kvm – ett trevligt tillskott som kan användas för kortare pauser eller informella möten när vädret tillåter.
Lokalen har ett strategiskt läge, bara ett stenkast från ringmuren, med matbutiker, restauranger och gym inom bekvämt räckhåll.
Varmt välkommen att höra av dig så berättar vi mer!
Låter det intressant?
Vänligen hör av dig till oss vid frågor.
Kontaktperson för frågor

Visby Tjädern 7
Tjädern 7 är belägen i ett attraktivt läge precis vid Östercentrum som ligger ovanför ringmuren i Visby. Här bedrivs olika typer av verksamheter så som gym, frisör och kontor.
Det här finns i området
Omgivning
Fastigheten ligger precis utanför Österport, i korsningen mellan Österväg och Norra Hansegatan. I området finns all önskvärd service i form av affärer, restauranger och bussterminal med avgångar till Fårö och Tofta. Att promenera till citykärnan i Visby tar ca 10 minuter, till färjeterminalen ca 20 minuter och till flygplatsen är det 10 minuters resa med bil eller buss.
Kommunikation
Ett av Visbys bästa lägen att nå med buss, bil och nära till taxistation. Goda kommunikationer till bl.a. Fårö och Tofta samt nära till både färja och flygplats.
Service
Då fastigheten ligger i Centrala Visby är det promenadavstånd till all tänkbar service.
Parkering
Gott om parkeringsplatser i anslutning till fastigheten med möjlighet att betala per timme eller månadsvis.