Återbruksvägen 7A, Örebro
Flexibel lokal på bottenplan med nära anslutning till bilparkering!
- Athena 19
- 2661-1024
- Kontor
- Tillträde enligt överenskommelse
- Hiss finns
- Våningsplan: 1
- Totalt antal våningar: 5
- Energiklass C. 115 kWh/m² år
- Byggår 1960
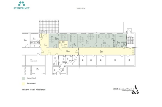
- 108 kvm
Liten, mellan eller stor? Välj ytan som passar er bäst!
Stenvalvet erbjuder nu en flexibel lokal på Återbruksvägen 7A!
Lokalen kan hyras i sin helhet om 108 kvm, eller anpassas till mindre lokaler om 35 eller 73 kvm. Den är lättåtkomlig på bottenvåningen och har stora fönster som skapar en ljus och trivsam miljö. Här finns rymliga kontorsrum, mötesrum och lunchrum med pentry.
Byggnaden är utrustad med fiber, och i hyran ingår både värme och vatten.
- Gott om parkeringsmöjligheter nära entrén. Parkeringsplatser finns att hyra för 300 kr per månad och laddplatser finns i närheten.
- Bra kommunikationer med busslinje 3 och 4 samt fina cykelvägar till och från Örebro centrum.
- Finns möjlighet med tidigare inflytt!
- Närhet till ICA Nära Eko, bensinstation, restaurang, återvinningscentral och hud- och hårvårdssalong.
Fastigheten ligger i ett område som kombinerar liv och lugn, med äldre- och gruppboenden, skolor, företag och bostäder. I närheten finns även ett nyanlagt vattenområde och ett mysigt promenadstråk som är perfekt för lunchpromenaden!
Välkommen att kontakta oss!
Låter det intressant?
Vänligen hör av dig till oss vid frågor.
Kontaktperson för frågor

Athena 19
Athena 19 ligger i Mellringe i nordvästra Örebro och består av ett helt kvarter med 14 byggnader placerade som en ring runt en lummig park. Fastigheten är modern och i gott skick, och några av byggnaderna är miljöcertifierade.
Det här finns i området
Omgivning
Fastigheten Athena 19 består av flera byggnader som omges av en grönskande park. I parkens mitt finner du Mellringe herrgård, en historisk pärla från 1600-talet. Området kombinerar både liv och lugn med verksamheter inom utbildning, vård, äldreomsorg och idrott. I närheten finns även ett nyanlagt vattenområde och ett mysigt promenadstråk som ytterligare bidrar till den avkopplande atmosfären. Framtidsplanerna för området inkluderar byggnation av flertalet nya bostäder och ett större idrottsområde. Dessutom övervägs en utbyggnad av BRT-systemet, vilket skulle innebära snabbare busstrafik till stora delar av Örebro, tätare avgångar och större punktlighet.
Kommunikation
Det är lätt att ta sig till området oavsett färdmedel. Från motorvägen når du adressen på mindre än 5 minuter. Busslinje 3 och 4 passerar området, och det finns cykelvägar hela vägen till och från Örebro centrum.
Service
I närområdet finns ICA Nära Eko med postombud, en bensinstation, restaurang, återvinningscentral samt en hud- och hårvårdssalong som även erbjuder kroppsbehandlingar. Inom cirka 5–10 minuter med bil når man Boglundsängen eller Västhaga, där det finns ett brett utbud av butiker som ICA Maxi, Rusta, Clas Ohlson och Systembolaget, samt flera restauranger och bensinstationer.
Parkering
Det finns gott om parkeringsmöjligheter i området. Bilparkering finns i nära anslutning till entrén, vilket gör det bekvämt för både besökare och anställda att enkelt komma till lokalen.