Ölandsgatan 5, Falun
Ledigt kontor om 264 kvm i gatuplan i centrum av Falun!
- Kardmakaren 20
- 7281-1113
- Kontor
- Tillträde enligt överenskommelse
- Hiss finns
- Totalt antal våningar: 6
- Energiklass B. 69 kWh/m² år
- Byggår 1989
- 264 kvm
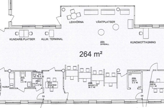
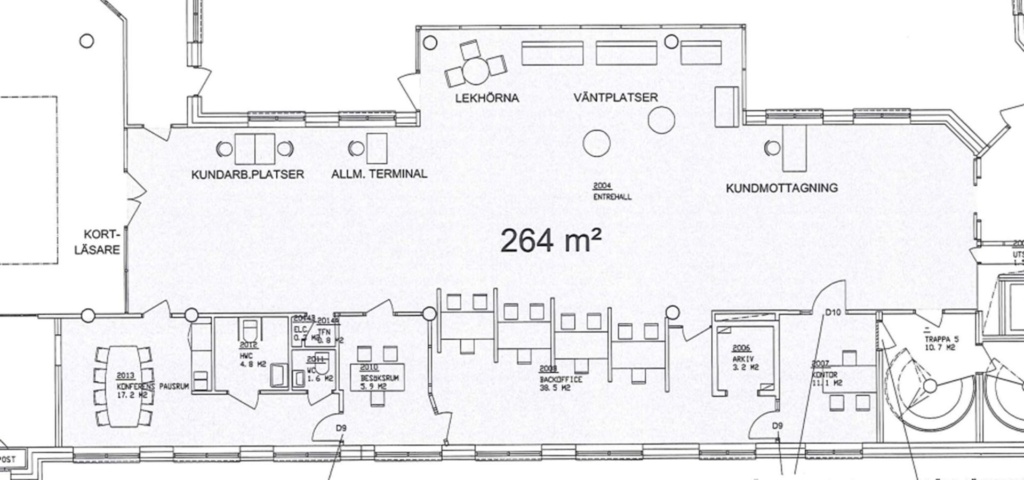
Kontor om 264 kvm i centrala Falun
Välkomna till fastigheten Kardmakaren! Här finns en trevlig kontorslokal med öppen planlösning i gatuplan i centrum av Falun. Den har två mindre kontor/besöksrum, arkivrum, lunchrum samt två wc. Lokalen ansluter till en fin liten innergård att nyttja när vädret tillåter.
P-hus Engelbrekt (Allmänt) finns under fastigheten. Cykelrum i gatuplan för den som önskar.
Fastighetens läge ger närhet till utbudet i centrum av restauranger, caféer, gym och shopping. Vacker omgivning för lunchpromenad längs Faluån.
Resecentrum är beläget en kort promenad från fastigheten.
Varmt välkomna att kontakta oss för mer information eller för att boka en visning!
Låter det intressant?
Vänligen hör av dig till oss vid frågor.
Kontaktperson för frågor

Kardmakaren 20
Kardmakaren 20 är en vacker fastighet centralt belägen nära Faluån, granne med polishuset och med trevliga promenadstråk runt knuten. Fastigheten utmärker sig genom sin fasadkonst.
Det här finns i området
Omgivning
Kontorsfastighet i centrala Falun, belägen vid den vackra Faluån och granne med Polishuset. Närhet till trevliga restauranger, shopping och hotell.
Kommunikation
Resecentrum, med all kollektivtrafik samlad, ligger inom några minuters promenadavstånd.
Service
Ett stenkast från fastigheten ligger centrum med all tänkbar service.
Parkering
P-hus Engelbrekt (Allmänt) finns under fastigheten.