Rademachergatan 8, Eskilstuna
Lokal om 500 - 2 000 kvm med bästa skyltläge!
- Vörten 1 & 2
- 7261-1101
- Vård och omsorg
- Tillträde enligt överenskommelse
- Hiss finns
- Totalt antal våningar: 4
- Energiklass F. 188 kWh/m² år
- Byggår 1976
- 2000 kvm
Välkomna till möjligheternas kvarter!
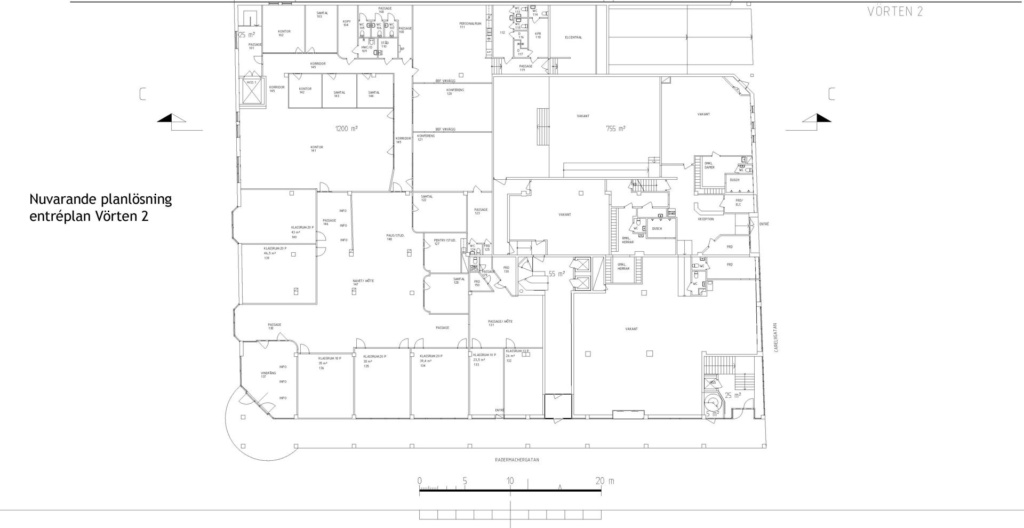
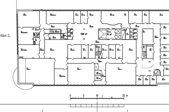
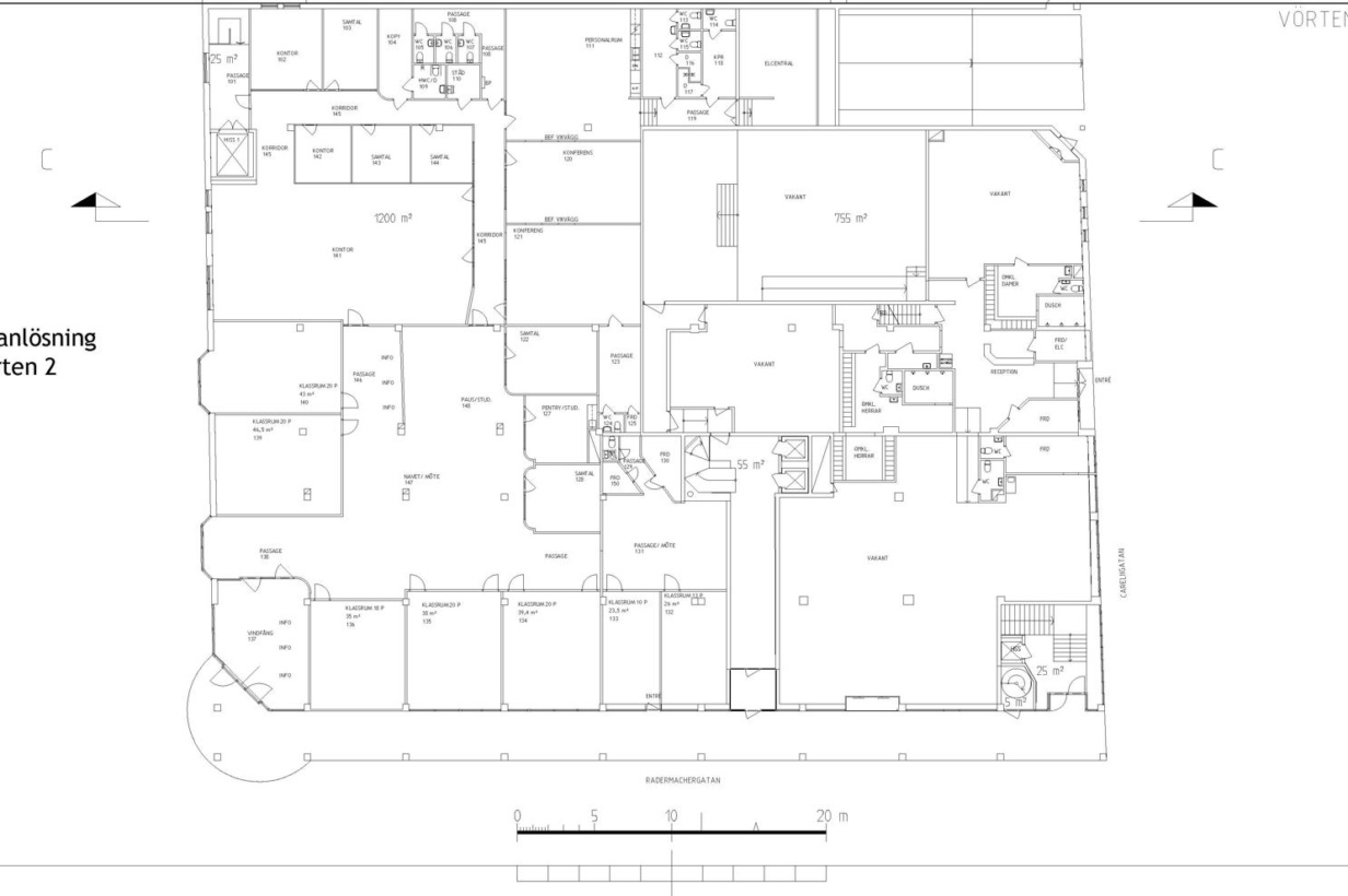
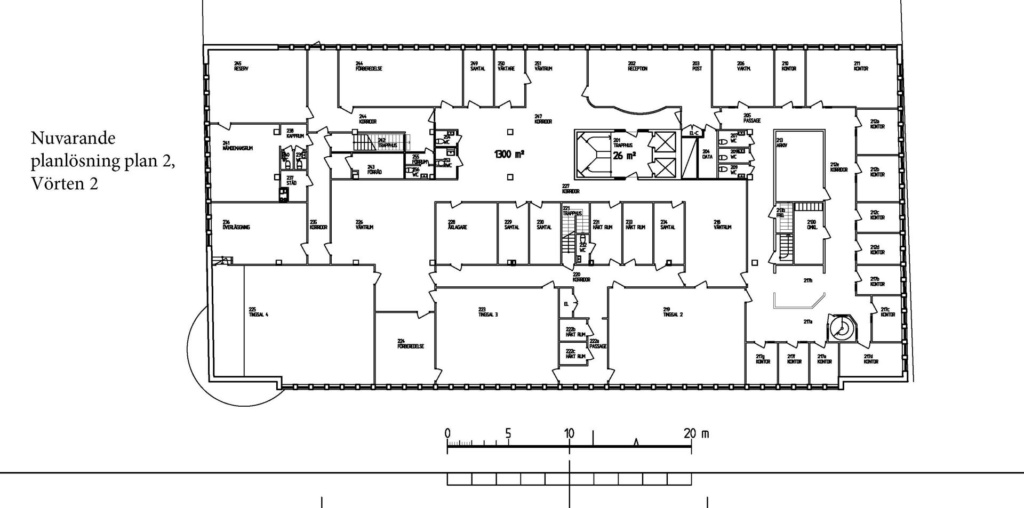
En mycket central lokal belägen i gatuplan med bästa skyltläge samt egen entré. Här erbjuder vi effektiva lösningar då lokalerna anpassas efter just er verksamhet. Planlösning och ytskikt skissas fram tillsammans med hyresgästen – butik, utbildning mm, vilka behov har ni? I Vörten 2 finns möjlighet att hyra lokaler från 500 – 2 000 kvm – se planlösningar för respektive våningsplan.
Varmgarage och cykelrum finns i fastigheten.
Flertalet utomhusparkeringar och parkeringshus finns inom gångavstånd i centrum.
Fastigheten är belägen i direkt anslutning till Fristadstorget mitt i centrum av Eskilstuna med flertalet restauranger, caféer, gym och shopping alldeles intill.
Trevliga promenadstråk längs Eskilstunaån och i Stadsparken
Tågstation och resecentrum är belägna ett par hundra meter från fastigheten.
Varmt välkomna för en dialog eller om ni önskar boka en visning!
Låter det intressant?
Vänligen hör av dig till oss vid frågor.
Kontaktperson för frågor

Vörten 1 & 2
Fastigheten är belägen i ett attraktivt område mitt i centrala Eskilstuna. Från huset är det fin utsikt över Eskilstunaån och det ombyggda Fristadstorget.
Det här finns i området
Omgivning
Fastigheten är belägen mitt i centrum i anslutning till Fristadstorget, gågatan med shopping samt flertalet restauranger alldeles intill.Ett stort varmgarage finns under fastigheten.
Kommunikation
Fastigheten ligger endast ett par hundra meter från tågstationen och Resecentrum med täta avgångar till bl a Stockholm, Västerås och Örebro. Ett par minuters promenad till de flesta lokala busslinjerna, vissa direkt utanför fastigheten.
Service
Vörten har ett mycket centralt läge med gångavstånd till tåg- och busstation, shopping, restauranger, gym, apotek, frisörer, hotell, Mälardalens Universitet mm. Ett stenkast från fina parker och promenadstråk runt Eskilstunaån. Till Munktellbadet och Volvo CE Arena är det en kort promenad på ca 8 minuter.Stadsnät finns i fastigheten.
Parkering
Varmgarage finns under fastigheten. Flertalet utomhusparkeringar och parkeringshus är belägna inom gångavstånd i centrum.