Storgatan 38-40, Landskrona
- Gamla Rådstugan 12
- 7231-1108
- Kontor
- Tillträde enligt överenskommelse
- Hiss finns
- Våningsplan: 3
- Energiklass E. 223 kWh/m² år
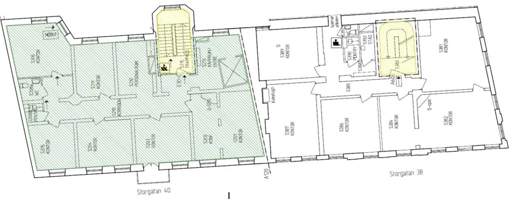
- 177 kvm
Lokal för dig som vill finnas mitt i centrala Landskrona!
Välkommen att hyra en charmig lokal i centrala Landskrona!
Nu har ditt företag chansen att hyra kontor i denna centrala och vackra byggnad mitt i Landskrona. Här finns möjligheten att anpassa ytskikt och i viss mån layout av kontorsytorna efter just era behov.
Lokalerna om 177 respektive 280 kvadratmeter är belägna i en byggnad uppförd 1920 och utformade för kontorsverksamhet. Alldeles intill på samma fastighet ligger en nyare del från 1974 som inhyser rättsväsende.
Det centrala läget, endast en minuts promenad från torget, gör det enkelt för både anställda och besökare att ta sig till och från kontoret. I området finns ett stort utbud av affärer, restauranger samt närhet till både park och hamn, vilket ger en trivsam arbetsmiljö. Det är nära till goda kollektivtrafikförbindelser och till parkeringsmöjligheter.
Varmt välkommen att lämna en intresseanmälan!
Låter det intressant?
Vänligen hör av dig till oss vid frågor.
Kontaktperson för frågor

Gamla Rådstugan 12
Fastigheten har ett attraktivt läge i centrala Landskrona och består av två byggnader, en i äldre stil och en mer modern. Det äldre huset kommer att anpassas efter kommande hyresgästs behov.
Det här finns i området
Omgivning
Fastigheten består av två byggnader på totalt 5 510 kvm, en äldre byggd 1920 och en modern från 1974. I den äldre delen bedrivs kontorsverksamhet och i den nya delen bedrivs verksamhet inom vård och rättsväsende. Fastigheten ligger mycket centralt endast en minuts promenad från torget.
Kommunikation
Bra kommunikationer med närhet till busstation.
Service
I området är det liv och rörelse och all tänkbar service finns här, så som affärer och restauranger och det är nära till både parken och hamnen.
Parkering
Parkeringsmöjligheter finns i området.