Kungsgatan 43, Eskilstuna
Hyr en trevlig kontorslokal om 293 kvm i K43 i centrala Eskilstuna
- Vägbrytaren 1
- 7131-1115
- Kontor
- Tillträde 2026-07-01
- Hiss finns
- Våningsplan: 3
- Totalt antal våningar: 7
- Energiklass C. 101 kWh/m² år
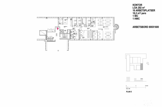
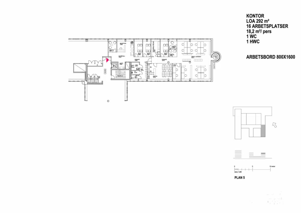
- 293 kvm
Modern kontorslokal om 293 kvm i centrum av Eskilstuna
Mycket trevlig och modern kontorslokal i K43. Kontorslandskap för 18-20 personer, tyst kontor för 2 personer, tre mindre samtalsrum, tre mötesrum, reception, lunchrum och wc-grupp.
Tillträde 2026-07-01 eller enligt överenskommelse.
I K43 finns flertalet cykelrum i källaren samt cykelställ utanför fastigheten på torget mot Bruksgatan. Här på torget har vi även bänkar för en paus utomhus när vädret tillåter. I mån av plats finns varmgarage i fastigheten.
Fastigheten har ett mycket centralt läge med flertalet restauranger, caféer, gym och shopping alldeles intill.
Trevliga promenadstråk i Rinmans- och Rothoffsparken alternativt längs Eskilstunaån och i Stadsparken.
Tågstation och resecentrum är belägna ett par hundra meter från fastigheten.
Varmt välkomna att kontakta oss för mer information eller för att boka en visning!
Låter det intressant?
Vänligen hör av dig till oss vid frågor.
Kontaktperson för frågor

Vägbrytaren 1
Moderniserad fastighet i det expansiva området Kunskapsstråket i centrala Eskilstuna, som de senaste åren förvandlats till en social mötesplats. Huset kallas K43, eftersom det ligger på Kungsgatan 43.
Det här finns i området
Omgivning
Välkommen till K43 - Eskilstunas modernaste kontorskvarter. Välkänd och representativ fastighet som har moderniserats och som håller hög nivå på säkerhet och skalskydd.
Kommunikation
Fastigheten ligger endast ett par hundra meter från tågstationen och Resecentrum med täta avgångar till bl a Stockholm, Västerås och Örebro. Ett par minuters promenad till de flesta lokala busslinjerna.
Service
K43 har ett mycket centralt läge med gångavstånd till tåg- och busstation, shopping, restauranger, gym, apotek, frisörer, hotell, Mälardalens Universitet mm. Ett stenkast från fina parker och promenadstråk runt Eskilstunaån. Till Munktellbadet och Volvo CE Arena är det en kort promenad på ca 8 minuter. Stadsnät finns i fastigheten.
Parkering
Flertalet utomhusparkeringar och parkeringshus är belägna inom gångavstånd i centrum.